Benutzer-Werkzeuge

Webseiten-Werkzeuge


aufgaben

MCKT - Motorsportclub Kirchheim unter Teck e.V. im ADAC
Birkhau 2
73230 Kirchheim unter Teck


 

Parcours-Aufgaben:

Verfasser: Hans-Jochen Lehmann
Stand: 07.05.2020



Allgemeines


Diese Aufbauhinweise sind nur Beispiele. Alle Maße, die nicht vom Reglement vorgegeben sind, können verändert werden und den eigenen Bedürfnissen angepasst werden.

 

Brezel


Der Aufbau der Brezel beginnt mit einer geraden Spurgasse. Diese besteht aus jeweils 10 Pylonen. Auf der Innenseite können die beiden mittleren entfallen. So verbleibt eine Lücke von 2,10 m.

Von der Mitte der Seitengasse aus gesehen stehen die Pylonen somit im Abstand von 1,05 m. Die beiden im Winkel zur Hauptgasse werden so zur Seite geschoben (ca. 0,22 m), dass zur Mittellinie der Hauptgasse auch ein Abstand von 1,05 entsteht.

Nun kann im Abstand von 0,5 m die Seitengasse aufgebaut werden

Lange Gasse

Eck-Pylonen

Seitengasse


Die Brezel kann auf unterschiedliche Weise durchfahren werden. Normalerweise würde man die Seitengasse in einer geraden Linie durchfahren.

Aber durch ein Schwenken der Fahrlinie auf die andere Seite kann früher eingelenkt werden. Dadurch verkürzt sich der Bogen um etwa 0,40 m. Dies geschieht in jedem „Kreis“ zweimal. Zusammen wird also der Gesamtfahrweg um etwa 1,5 Meter kürzer.

Fahrspur

normale Fahrspur

Fahrspur mit Schlenker

verkürzte Fahrspur

Die Durchfahrzeit für die gesamte Brezel beträgt etwa 8-9 Sekunden, die Länge der Fahrspur etwa 47 m. Daraus folgt eine Geschwindigkeit von etwa 5,5 m/s (~ 20 km/h). Durch die verkürzte Strecke könnte sich ein Zeitvorteil von etwa 0,3 Sekunden ergeben.

 

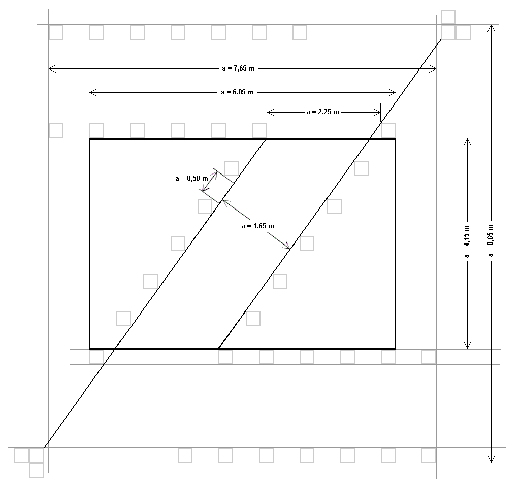
Das »Z«


Rechteck

Rechteck: 6,05 x 4,15 m

Erste Pylonen

Das innere „Z“

Aufbau

Fertig

Fahrspur

Fahrspur
 

Ecke


Deutsches Eck

Deutsches Eck (leicht)

Das „Deutsche Eck“ ist problemlos zu durchfahren.

Normales Eck

Normales Eck (schwer)

Diese Aufgabe kann nur bewältigt werden, wenn über die Pylonenfüße gefahren wird

Zweifaches Normales Eck

Kombination (sehr schwer)

Kombiniert man 2 normale Ecken mit 4 m Abstand, so entsteht eine sehr schwere Kombination zweier Aufgaben.

Diese Aufgaben können nur bewältigt werden, wenn über die Pylonenfüße gefahren wird.


 

Kasten


Der Kasten ist eigentlich eine halbe Schikane. Er kann aber auch wie ein „Deutsches Eck“ gefahren werden.

Normaler Aufbau

Aufbau

Aufstellung

Fahrspur

Fahrbarkeit gut

Wie "Deutsches Eck"

Wählt man den Aufbau ähnlich dem „Deutschen Eck“, so passen die Pylonen auf den beiden langen geschlossenen Seiten nicht in das Raster von 0,80 m. Die Ein- und Ausfahrt sind mit dem Maß 1,65 m vorgegeben. Daher müssen die Pylonen auf den Außenseiten mit einem Fußabstand von etwa 0,59 m aufgestellt werden.

Aufbau

Aufstellung

Fahrspur

Fahrbarkeit sehr leicht
 

Kreisel

Reglement (Vorgaben):

Im Reglement des ADAC ist der Kreisel beschrieben:

Der Kreisel muss mindestens einmal komplett (360°) durchfahren werden. Die Fahrtrichtung ist freigestellt. Die Pylonen werden erst nach Verlassen der Aufgabe wieder aufgestellt und gewertet.
Die Ein- und Ausfahrt ist mit liegenden Pylonen zu kennzeichnen.

Abmessungen

  • Innendurchmesser: 10,0 m (Innenseite der Spur)
  • Pylonenabstand: 1,0 m (Fußabstand)
  • Fahrspurbreite: Spurbreite + 0,4 m = 1,65 m
  • Einfahrt: 3,0 m (Fußabstand)
  • Ausfahrt: Spurbreite + 0,4 m = 1,65 m

Platzbedarf:

Es wird ein freier Platz von etwa 20 m Durchmesser benötigt, das bedeutet:
Außendurchmesser + 2x Sicherheitsabstand:
13,30 m + 6,00 m = 19,30 m

Wieviele Pylonen werden benötigt?

  • Innen: Umfang / 1,3 m = 10,0 m * Pi / 1,3 m = 24 Pylonen
  • Außen: Umfang / 1,3 m = 13,3 m * Pi / 1,3 m = 32 Pylonen

Aufbau

Kreise zeichnen

  • Festlegung des Mittelpunktes (Bild 2)
  • Zeichnen des Innen-Kreises mit 10,00 m Durchmesser
  • Zeichnen des Außen-Kreises mit 13,30 m Durchmesser

Kreise gleichmäßig auf 8 Abschnitte teilen

  • 4 Pylonen auf der Achse A durch den Mittelpunkt aufstellen (Bild 3)
  • Rechter Schnittpunkt PR der Sehnen S = 7,07 m
  • Linker Schnittpunkt PL der Sehnen S = 7,07 m
  • 4 Pylonen auf der zweiten Achse PL-PR durch den Mittelpunkt aufstellen
Bild 2
Bild 3
Bild 4
  • Halbierung der Abschnitte zwischen den Pylonen auf dem Innenkreis (Bild 4)
  • Der Abstand S2 vom Mittelpunkt der Pylonenfüße auf dem Innenkreis beträgt etwa 3,83 m
  • 4 Pylonen so auf dem Innenkreis anordnen
  • 4 Pylonen auf dem Außenkreis in Flucht zum Mittelpunkt anordnen

Kreisabschnitte weiter teilen

Bild 5
Bild 6
Bild 7
  • Halbierung der Abschnitte zwischen den Pylonen auf dem Außenkreis (Bild 5)
  • Der Abstand S3 vom Mittelpunkt der Pylonenfüße auf dem Außenkreis beträgt etwa 2,59 m
  • 8 Pylonen so auf dem Außenkreis anordnen
  • Halbierung der verbliebenen Zwischenräume auf dem Außenkreis (Bild 6)
  • Dritteln der verbliebenen Zwischenräume auf dem Innenkreis

Eingang

  • Für den Eingang eine Pylone entfernen (Bild 7)
  • Die beiden benachbarten Pylonen etwa 35 cm zur Seite schieben, sodass eine Lücke AE von 3,0 m entsteht
  • Der Abstand zu den beiden nächsten Pylonen beträgt nun nur noch etwa 65 cm
  • Zwei Pylonen außen neben den Eingang legen
  • Die Spitzen zeigen zum Eingang
  • Der Abstand zu den beiden begrenzenden Pylonen beträgt 50 cm (Pylonenhöhe)

Ausgang

  • Für den Ausgang zwei benachbarte Pylonen etwa 33 cm zur Seite schieben, sodass eine Lücke AA von 1,65 m entsteht
  • Der Abstand zu den beiden nächsten Pylonen beträgt nun nur noch etwa 67 cm
  • Zwei Pylonen außen neben den Ausgang legen
  • Die Spitzen zeigen zum Ausgang
  • Der Abstand zu den beiden begrenzenden Pylonen beträgt 50 cm (Pylonenhöhe)
 

Kreuz


Aufbau

Aufstellung

Fahrspur

Fahrbarkeit gut
 

Schikane


Es werden zwei Reihen von jeweils neun Pylonen aufgestellt. Der Fußabstand zwischen den Pylonen beträgt 0,50 m, somit hat jede Reihe die Länge von 6,70 m (8 * 0,5 m + 9 * 0,30 m).

Der Fußabstand zwischen den Reihen beträgt 3,25 m (1 * 1,65 + 2 * 0,5 m + 2 * 0,3 m).

An den mittleren Pylonen der Reihe an die die Ein- und Ausfahrt angrenzt werden zwei Pylonen im Abstand 0,5 m aufgestellt, sodass eine Durchfahrtsbreite von 1,65 m entsteht.

Aufbau

Aufstellung

Fahrspur

Fahrbarkeit gut
 

Spurgasse "S-Spurgasse"


Theorie

Aus einer gebogenen Spurgasse (Bogen) kann durch Erweiterung eine S-Gasse mit Richtungswechsel aufgebaut werden.

Idealer Radius

Eine S-Gasse ist besonders einfach aufzubauen, wenn bestimmte Festlegungen getroffen werden. Ideal ist, wenn in einem Winkelbereich auf der Außenlinie doppelt so viele Pylonen stehen wie auf der Innenseite. Durch die vorgegebene Fahrspurbreite von 1,65 m zuzüglich 0,30 m für eine Pylone steht die Differenz beider Radien mit 1,95 m fest. Somit muss auch der innere Radius 1,95 m besitzen, damit außen ein doppelt so großer von 3,90 m entsteht.

Die Pylonen werden im Abstand von 0,5 m aufgestellt. Dies entspricht auf dem Innenkreis einem Winkel von 23,5° und auf dem Außenkreis von 11,75°.

Endlose Spurgasse

Gemäß Reglement ist die Zahl der Pylonen auf maximal 10 je Seite begrenzt.

Verlängert man die Anordnung, so kann ein beliebiger Abschnitt davon als S-Gasse ausgewählt werden.

Gleichzeitig beträgt das Wiederholungsmaß dieser Anordnung 4,50 m, was einem „Schweizer Slalom“ mit einem Abstand von 4,20 m entspricht (voilette Markiering).

Praktischer Aufbau der S-Gasse

Richtungswechsel

Der Aufbau wird mit dem Richtungswechsel begonnen. Hierfür werden die beiden Kreismittelpunkte im Abstand von 6,15 m sowie die beiden mittleren Pylonen angezeichnet.

Fahrspuren

Um die beiden Kreismittelpunkte werden im Abstand von 2,25 m und 3,90 m jeweils zwei Kreise oder Kreisabschnitte gezogen. Dies geschieht soweit, wie die Gasse verlaufen soll.

Zur Ergänzung können auch die Mittelpunkte der End-Pylonen einer symmetrischen 7er-Gasse ermittelt werden. Diese sind 4,50 m von den Kreismittelpunkten entfernt.

Somit ist die Konstruktion schon fast fertig. Entlang der Kreislininen werden die Pylonen mit einem Zwischenraum von 0,5 m ghleichmäßig verteilt.

Vollständiger Aufbau
Enger Ausgang

Außerdem ist es möglich, die Ein- oder Ausfahrt mit einem anderen (engeren) Radius zu gestalten, um den Schwierigkeitsgrad zu erhöhen. Hierfür wird einfach an der Ecke der letzten Innenpylone ein Radius von 1,65 m (Fahrspurbreite) gezeichnet und zwei Pylonen im einem Zwischenraum von je 0,5 m aufgestellt.

Diese Gasse kann beliebig in der Anordnung verschoben werden.

 

Spurgasse (innen eng gestellt)


Bogen 1-3

Bogen 1-3 (leicht)

Radius vom Mittelpunkt der inneren Pylone 1,85 m

Bogen 1-4

Bogen 1-4 (mittel)

Radius vom Mittelpunkt der inneren Pylone 1,85 m

Bogen 3-4

Bogen 3-4 (leicht)

Innen-Radius: 0,95 m
Außen-Radius: 2,60 m

Bogen 3-5

Bogen 3-5 (schwer)

Innen-Radius: 0,75 m
Außen-Radius: 2,40 m

Bogen 4-5

Bogen 4-5 (mittel)

Innen-Radius: 1,05 m
Außen-Radius: 2,70 m

Bogen 4-6

Bogen 4-6 (schwer)

Innen-Radius: 0,85 m
Außen-Radius: 2,50 m

Bogen 5-5

Bogen 5-5 (mittel)

Innen-Radius: 1,45 m
Außen-Radius: 3,10 m

Bogen 5-6

Bogen 5-6 (mittel)

Innen-Radius: 1,20 m
Außen-Radius: 2,85 m

 

Spurgasse (innen weit gestellt)


Theorie

Ideale Maße

Eine gebogenen Spurgasse ist besonders einfach aufzubauen, wenn bestimmte Festlegungen getroffen werden. Ideal ist, wenn in einem Winkelbereich auf der Außenlinie doppelt so viele Pylonen stehen wie auf der Innenseite. Durch die vorgegebene Fahrspurbreite von 1,65 m zuzüglich 0,30 m für eine Pylone steht die Differenz beider Radien mit 1,95 m fest. Somit muss auch der innere Radius 1,95 m besitzen, damit außen ein doppelt so großer von 3,90 m entsteht.

Die Pylonen werden im Abstand von 0,5 m aufgestellt. Dies entspricht auf dem Innenkreis einem Winkel von 23,5° und auf dem Außenkreis von 11,75°.

Aufbaubeispiele

Gasse 3-5

Gasse 3-5 (sehr leicht)

Innen-Radius: 2,25 m
Außen-Radius: 3,90 m

Gasse 3-6

Gasse 3-6 (leicht)

Innen-Radius: 1,60 m
Außen-Radius: 3,25 m

Gasse 3-7

Gasse 3-7 (schwer)

Innen-Radius: 1,25 m
Außen-Radius: 2,90 m

Gasse 3-8

Gasse 3-8 (sehr schwer)

Innen-Radius: 1,05 m
Außen-Radius: 2,70 m

Gasse 4-7

Gasse 4-7 (sehr leicht)

Innen-Radius: 2,25 m
Außen-Radius: 3,90 m

Gasse 4-8

Gasse 4-8 (sehr leicht)

Innen-Radius: 1,75 m
Außen-Radius: 3,40 m

Gasse 4-9

Gasse 4-9 (leicht)

Innen-Radius: 1,45 m
Außen-Radius: 3,10 m

Gasse 4-10

Gasse 4-10 (schwer)

Innen-Radius: 1,25 m
Außen-Radius: 2,90 m

Gasse 5-9

Gasse 5-9 (sehr leicht)

Innen-Radius: 2,25 m
Außen-Radius: 3,90 m

Gasse 5-10

Gasse 5-10 (leicht)

Innen-Radius: 1,85 m
Außen-Radius: 3,50 m

 

Z-Gasse


Die Z-Gasse besteht aus einer parallelen Anordnung dreier geraden Gassen. Auf diese Weise wird auch der maximale Radius (3,0 m), den das Kart bewältigen kann nicht überschritten.

Normaler Aufbau

Aufbau

Für Übungszwecke können in den Zwischenräumen weitere Pylonen aufgestellt werden.

Aufstellung

Fahrspur

Fahrbarkeit schwer

Außerdem kann die Anordnung mit 2,10 m Gassenbreite schnell zu einer Schnecke umgebaut werden. Der Kasten wäre dann mit 2,70 m allerdings etwas kleiner als im Reglement angegeben (ca. 3 m).

 

Ypsilon


Aufbau

Das Ypsilon besteht aus zwei Gassen, die ineinander in Ypsilon-Form verbaut werden. Im Beispiel verlaufen die Gassen in der Mitte in einem Winkel von 23° zur Achse des Ypsilon.

Die Hauptschwierigkeit besteht in der Wende, daher sollten die Ausgänge des Ypsilon nicht zu dicht aneinanderliegen (hier 90 cm).

Grundabmessungen, 3 Gassen in 4,3 m Abstand
Diagonale Seiten 4,70 m lang
Fertiger Aufbau
Fahrlinie

xxxx

 


aufgaben.txt · Zuletzt geändert: 2020/08/21 23:49 (Externe Bearbeitung)

Seiten-Werkzeuge